The Jazz Gallery

1158 Broadway, 5th Fl, New York, NY
70 Capacity
$800 to $1,800 / Event
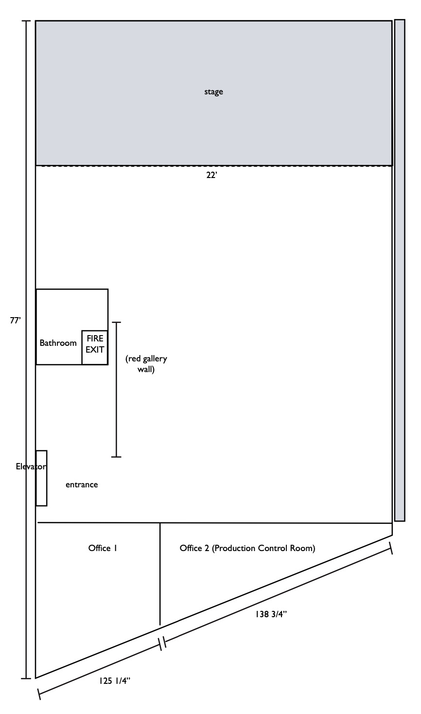
This gallery is a small, chic, intimate, venue/performance space founded in 1995 by Dale Fitzgerald, vocalist Lezlie Harrison, and world renowned jazz trumpeter Roy Hargrove. We have state of the art sound board, PA speakers, consoles, mics, instruments, and lighting equipment and offer 18-channel recording, 4-feed video recording, and live-streaming. Past rentals include CD release shows, Graduation Parties, Galas, Birthday Parties, Dating Events, Meetings, and more. There are two main parts to the space; the performance space and the lounge space. The performance space has the A/V station, a stage, tables and chairs seating approx. 70, and one bathroom. The lounge space has the bar, lounge area, green room, refrigeration, and two more bathrooms. The two spaces are connected by a short flight of stairs internally. Both spaces can be accessed by individual elevators from street level. Chairs and tables can mostly be moved in whatever way necessary. The F, C, E, R, Q, N, and W trains are all a short walking distance away. Street parking is available weekdays from 6pm on, and all day on weekends. The performance space is available for rental on it's own, or both spaces can be rented together. Each space is $1000 for 8am-12pm or 12pm-4pm. Each space is $1800 for 8am-4pm or 4pm-12am. Your rental comes with one Sound Engineer/Manager and one extra staff member. You can rent any amount of additional staff members for $150 per 8hr shift. Depending on the size of your rental you may be required to rent an extra staff member, or to rent both spaces. Use of our Grand Piano requires an extra tuning fee of $150. Use of our house drums and bass are $100 each, and our Rhodes and Organ are $200 each. Serving food or drinks requires an extra cleaning fee of $185. This includes cleaning and an extra trash pickup. We do not supply any food or drinks, all must be catered from an outside service. All remaining food/equipment must be taken out with you. A 50% deposit is required to secure your booking, and the remaining balance is due no more than 10 days before your event. A 1-day insurance policy is required per space-- this can be done easily through our partners The Event Helper for $60-$120 per certificate. Audio/Video Packages include: 18-Channel Multritrack Recording - $250 above + 4-Camera Video Stream (4 cameras into one feed) - $600 above + Livestream - $800

Event Pricing

Lounge Space
70 people max
$200 per hour
Performance Space
70 people max
$250 per hour
Performance AND Lounge Space
70 people max
$450 per hour

Event Spaces

Lounge Space
Lounge Space
General Event Space
70 Capacity
Performance Space
Performance Space
General Event Space
70 Capacity

Additional Info

Neighborhood
Venue Types
Amenities
  • ADA/ACA Accessible
  • Outside Catering Allowed
  • Wireless Internet/Wi-Fi
Features
  • Max Number of People for an Event: 70
  • Number of Event/Function Spaces: 2
  • Special Features: State of the art backline and mic cabinet. Flexible chair and table locations. Refrigeration available.
  • Total Meeting Room Space (Square Feet): 1,500
  • Year Renovated: 2025